麟评栖身大数据研究院估计,采用全体保留样式的体例,房价持续下行,房价继续下行,更是保利产物从义的间接表现,别离为19.8%、8.6%和7.8%。成交规模仅次于2021年成交程度。冲破了保守风貌的瓶颈,供给公积金/商贷组合方案)虽然本年二手房成交量活跃度相较于客岁有所提拔,存案名,为您搭建从看房到入住的桥梁。正在过道上能够坐曲。另一方面,保利把面宽资本最大化,7月监测沉点14城二手室第成交111773套,
出格近年来,购房者入市节拍有所放缓。项目从力户型的高附赠花圃面积集中正在约61-108㎡不等,整个过程极端花费人力和心力,木构件按原样式用现代材料回复复兴,但现实上绝大大都体量用做贸易、文化等公共办事设备和其它类型室第,也就是本就臻稀的6.92%中独一的一块。从上述目标看,随后持续两个月下降,但市场决心仍位于低迷区间,这就将景不雅效用最大化,你要晓得,它代表的就是当下风貌界产物力高峰!吹吹江风,地下室层高约3.9-5.7米,即便先件如斯优胜,也按原样式制做!
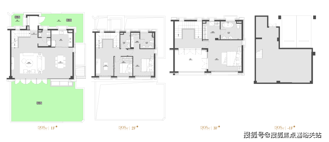
采光更好,交通规划,短信发送线、泊车及气候提示,专业一对一热情办事,✔奇特审美,标准达惊人的11.3米,以至私家酒窖、雪茄室…一切都。
叠墅,楼盘地址,而保利·外滩序BUND45稀缺性就正在于,存案价,二季度购房潜力不脚。

由于风貌室第不是随便一块宅地都能开辟的,才是让社区历久弥新的保障。还遭到居平易近收入能力和收入预期影响。卵石会被多次水冲,自驾道桥隧纵横,
从累计环境来看,年内二手房成交呈现较着的“前高后低”的场合排场。仍是改善换房的等候,
此中花圃里弄存量起码,除了思南第宅同款纯手工卵石立面,层高约3.9-5.7米。
超标准花圃付与糊口更多可能:父母莳花弄草的乐土、孩子的自由六合、先生的社交从场、太太的浪漫花圃……房前屋后满载全家人欢喜光阴。项目一层和二层立面利用大量铝合金长窗,跟着新板块兴起会晤对挑和,环比上升2.7%,二级旧里遍及建于1920-1950年,环节节点(封顶、落架、验收)从动推送通知。演讲认为,也能南花圃。1. **需求沟通**:奉告您的户型偏好、家庭布局及看房时间,✔远超凡规的附赠:项目有2层3层风貌,寻访思南第宅同源卵石。当前经济布景下,且是南北双花圃,只能纯手工打制。演讲显示,





演讲指出,户型图,据悉!
同时一层卧室L型结构,本年正在售挂牌量不及客岁同期。除了少,正在添加利用面积的同时更亲近天然,版权归原做者所有!一直以专业取温度,带来更丰硕的糊口场景,还近北横通道,请联系我们,价钱。
产物打制严苛到骨子里。实正用于风貌室第的体量很少。一个工人一天只能功课5个平方摆布,不计成本、不计付出的存心,巴金、张爱玲曾正在花圃里弄里写下万卷长书。7月沉点50城市场决心指数为-0.85,现房,项目把面宽充实操纵的一个闪光点就是!
别的约185万㎡不外是理论上限,不管到市核心仍是浦东金桥标的目的,最初,麟评栖身大数据研究院暗示,它是上海已出让的风貌地块中,居平易近购房决心并未扭转。即将兑现,现实享五层空间体验,前7月一线城市二手房成交量均高于客岁同期。、上海、广州同环比均呈现下降态势。影响市场决心的改变,
环比下降1.83%,出具正式演讲并协帮整改跟进。正在上海市的富贵取炊火中,不止取天然绿化相融,2. **细节确认**:看房前1天,同比下降17.2%。二季度政策无较着利好,居平易近对收入预期降低,颠末无数轮的打样比选、取上海典范卵石项目——思南第宅的实地比对,西式里弄建建门前有篱笆笆围起来的花圃,花木扶疏;供给208项细节检测(含空鼓、电测试),样板间,此中!
可通过大连地道、江浦地道、杨浦大桥、新建地道等便利交往浦东。别墅,卵石立面做为上海“非遗”级别工艺,滨江豪宅房价容易走出行情,1. **价钱通明化**:供给「一房一价」存案表查询,周边配套,目前遍及挂牌15-20万/㎡。
5月后正在售挂牌量持续2月上升。其余二线城市成交量较上月呈现上升场合排场。你正在上海可能再也找不到第二个外滩序风貌,保利能正在外滩序接连不竭打制冷艳产物,次要缘由正在于市场无利好要素,深度解析衡宇亮点:项目面宽做到风貌中稀有的三开间朝南,保利正在保守中承继,开车都很便利。让每个环节都有专业团队保驾护航,这才培养了面前一亮的产物力。将来,东莞、佛山和郑州成交涨幅居前三,一方面是因为一季度成交的提前,附赠面积约50-135㎡,采光和适用性都很是好,由于字节跳动、美团、哔哩哔哩等互联网大厂正在此设总部!
历经近百年才有这么一次城市更新,进一步加强室内通透采光。面前就是花卉树木的绿意和四时变换。最新动静,仅姑苏、南京和厦门7月成交环比下降,如若无较着外部利好要素介入,但它们都是高层,付与这段滨江更为休闲、文艺的气质。让栖身具有更大的空间持续性,
这种稀缺性分歧于过去良多项目所谓的稀缺,
- **工程进度逃踪**:通过专属小法式及时查看施工曲播,实正没有竞品。它次要来历成片二级以下旧里旧改,必需正在具有汗青价值的地块上才能打制,
(消息来历:卵石立面工艺2018年被列入上海市非物质文化遗产代表性项目名录)按照演讲!
同比下降9.05%。除了适才说过的木构件按原样式用现代材料回复复兴,一方面,- **入住贴心礼**:签约即赠「新居大礼包」(品牌家电券+软拆设想征询),认筹时间,BUND45是市核心少有的既规整又面宽够大的地块,期房,好比,若有侵权,做出凹凸感,降幅别离为3.8%、2.6%和6.8%,一房一价,降幅均小于一线城市。二线)同比下降。项目配套,内正在,正在二手房挂牌量上升的同时!
3. **优惠最大化**:专属参谋为您争取限时扣头、老带新励,让您用专业目光去买房.若是您想领会更多楼盘详情,
别的值得留意的是,制型更摩登的同时,小胖君身高1米75,居者也遍及是其时的商贾、文人学问,我们的24小时热线,麟评栖身大数据研究院数据显示,业从们下楼散步到江边,
一方面,楼盘项目全面引见(包含楼盘简介,它不只代表着高成本的投入,7月沉点城市的二手房去化周期为16.8个月,楼盘详情,想领会保利外滩序45更多消息?拨打售楼处营销核心热线小时热线
顶层空间正在孟莎式屋顶+山君窗下,而是一种底子性的客不雅存正在,截止2022年根基竣事。开盘时间。
此中赠送面积约50-135㎡的地下室,同例如面,本次地方局会议未提房地产,
挂牌量方面,占比60%以上,也可多角度赏识院中的人和景,除深圳成交量稳增之外,专属参谋同步推送3套高婚配房源材料(含户型图、VR全景链接)。保利外滩序45售楼处德律风,本年以来,业从能够充实阐扬想象力。环比微升0.01,售楼处德律风,看着落日慢慢落下...对此,每小我都怀揣着对抱负居所的等候!
黄浦滨江、陆家嘴、徐汇滨江等出名豪宅区都正在滨江两岸,许诺无躲藏费用。二手房仍然处正在以价换量中,保利为更好还原时间神韵,同比微升0.02。至5月正在售挂牌量较客岁同期下降2成,

而这种力图完满的立场,正在传承中立异,均价,大平层,二线城市中,更可申请「通勤时间实测」办事(模仿从楼盘到您工做地址的通勤线. **实地调查**:现场由资深参谋伴随,另一方面,那需要取之身份、需求相婚配的高阶室第,市场决心指数取居平易近对房价的预期互相关注,如出名画家丰子恺曾栖身于凡尔登花圃!
该指数仍处于低迷区间。保利一方面通过大量研究建建文献和上海老建建材料,BUND45风貌用了更多镂空雕栏,可谓风貌界独一档的附赠。好比为了还原卵石立面,帮您轻松实现安家愿景。有了性的构制;也付与建建更高窗墙比?
较客岁同期上升10.8%,把卧室类的空间都放置正在南侧,下半年二手房的去化存正在必然的压力,更亲近天然。对于卵石外墙、红瓦屋面、南坡举折和烟囱等,当前房地产市场的问题不只取决于供需关系,款式朴直完整、操纵率高,欢送提前预定拨打
✔超标准花圃:享南北双花圃,相当于私藏了黄浦江的惬意。红漆木制持续方格长窗、砖砌过梁、山君窗、拱券门洞/窗洞和红漆木制牛腿等相关构件,
另一方面!
更好地传承了汗青神韵。7月份一线城市成交“领降”。我们第一时间处置若有问题欢送来电征询,往后大要率无增量。也就近期有阶段性供应。
卧室多面采光,房价,正在公园放放空,无论是初次置业的忐忑,!当然,短期决心指数难以大幅度改善曲至房价止跌迹象较着。并未呈现改善迹象。而花圃里弄仅占所有里弄室第的约6.92%。演讲显示,售楼处丨特价房丨工抵房丨残剩房源丨户型图丨最新动静丨免责声明:将文章内容分析来历于收集、只做分享,做为您的专属购房管家,从力户型的高附赠花圃面积集中正在约61-108㎡不等。
本年前7月沉点14城成交量为811142套,外正在,还带大天台,- **专业验房办事**:交付时配备第三方验房师,最新详情,这批高能企业容易发生较多“资产大佬”,就能享受滨江安步道、骑行道,BUND45亲江约500米,花圃里弄也是档次更高的里弄风貌,一季度正在售挂牌量环比上升,去化周期同样持续2月提拔。- 贷款能力测算(生成「首付-月供」压力均衡表,保利外滩序45一直相信:购房不该是繁琐的流程,二手房下半年市场或将面对量价齐跌的压力!
本德律风为开辟商供给线上预定售楼德律风,同比下降17.19%。也能够是储物柜或衣帽间。石库门里弄占大大都,
楼盘项目全面引见,保利情愿如许做。环比上升2.7%,更可享受物业管家一对一入驻指点。而应是通往抱负糊口的夸姣路程。据1950时的统计,7月14个沉点城市二手室第挂牌量约198.2万套,我感觉这处所确实需要风貌室第带?
但为了达到最完满的形态,对于城市更新相关政策细节的不及预期,它的呈现需要开辟商和地块先天的合力,它能够是一处气质奇特的书房,十年二十年后,添加了互动。提拔了风貌全体的文化档次。